Campus Santa Rosa é selecionado para hospedagem de Unidade Incubadora
O IFFar- Campus Santa Rosa foi selecionado para hospedar Unidade Incubadora. Dois empreendimentos foram classificados para serem incubados no Campus: AMP Vector e o Bonuz Cash – Programa de Fidelidade.
O objetivo da seleção é a criação de novos negócios, baseados em tecnologias inovadoras da Economia Criativa, caracterizados pela inovação tecnológica e pelo uso de modernos métodos de gestão.
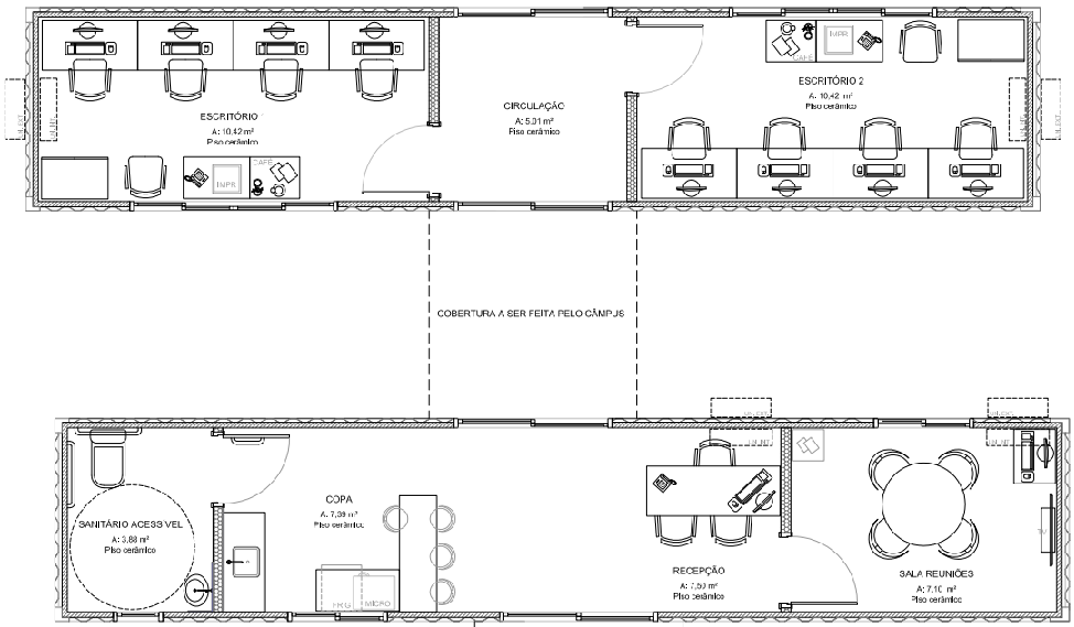
A Unidade Incubadora foi contemplada com recurso no valor de R$ 165.000,00 e receberá como infraestrutura física dois contêineres (um para recepção e outro para incubação), além de mobiliário e equipamentos.
O edital nº 427/2017 do Instituto Federal Farroupilha selecionou 03 campi para receber incubadoras de empresas e 02 empresas para serem incubadas em cada campus. Os campi Panambi e Jaguari também foram selecionados.
A expectativa, segundo o coordenador do NIT - Núcleo de Inovação Tecnológica do IFFar - Campus Santa Rosa, professor Rodrigo Magnos Soder, é incentivar o surgimento de empresas de base tecnológica/social e contribuir para o desenvolvimento do setor produtivo.

Imagem: Projeto da estrutura dos contêineres
Redes Sociais